Popis domu Tallinn
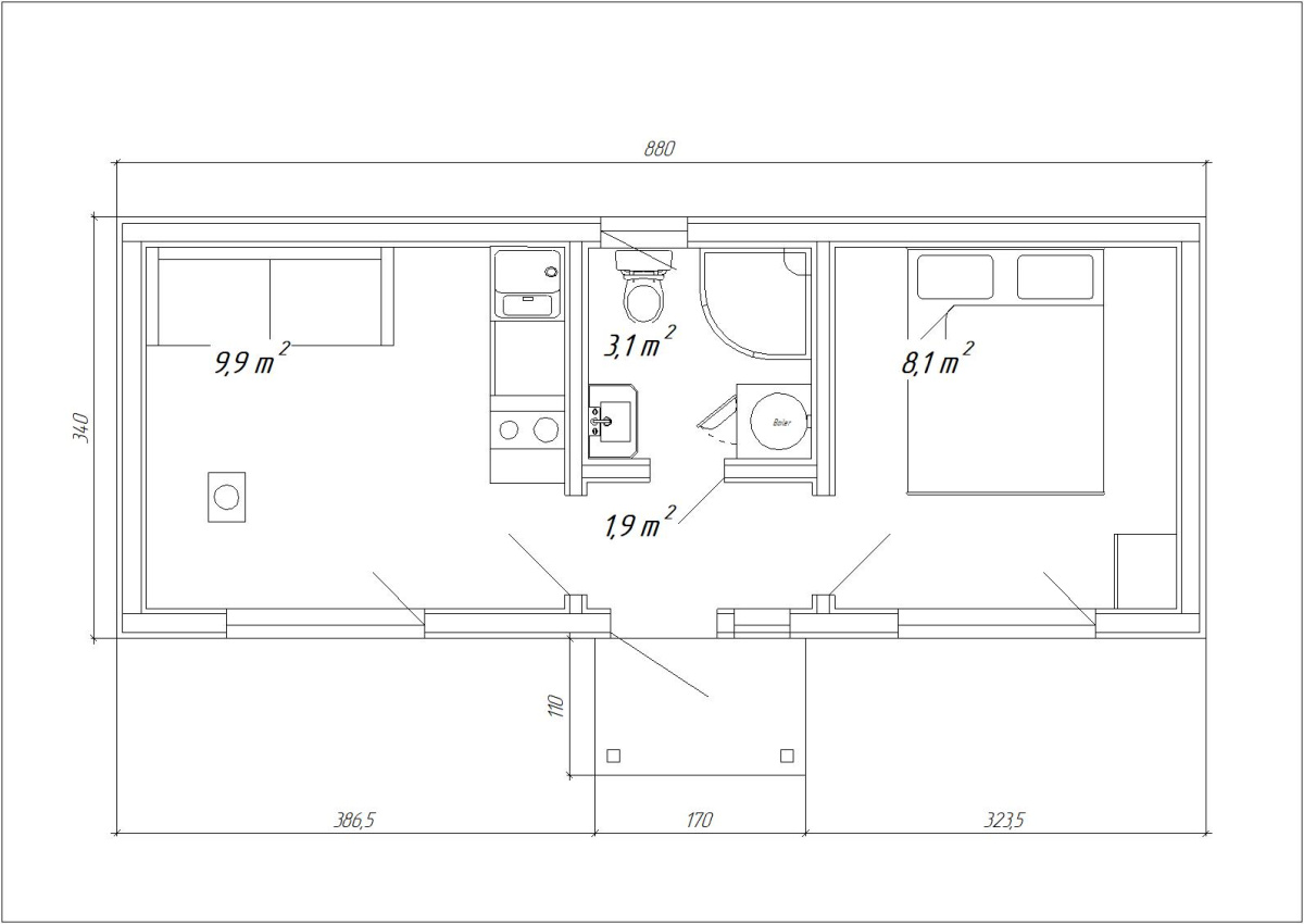
Dom je navrhnutý so samostatnou spálňou, kúpeľňou ,obývacou izbou s kuchyňou. Tento modul môžete využiť aj na svoje podnikanie, ako kanceláriu, kaviareň, alebo rekreačný objekt.
|
|||||||||||||||||||||||||||||||||||||||||||
|---|---|---|---|---|---|---|---|---|---|---|---|---|---|---|---|---|---|---|---|---|---|---|---|---|---|---|---|---|---|---|---|---|---|---|---|---|---|---|---|---|---|---|---|
Parametre
- Úžitková plocha: 30 m2
- Výška: 3,30
- Šírka: 3,40
- Dĺžka: 8,80
- Svetlá výška interiéru: 2,35 – 2,7 m
- Zateplenie: podlaha a strop - 200 mm stlačené na 150 mm (minerálna vlna) steny - 150 mm (čadičová vlna)
- Kostra: suché kalibrované drevo chránené bioochranou
- Okná: dvojkomorové kovovo-plastové 3 sklá
- Dvere: vchodové dvere - kovovo-plastové, interiérové dvere - MDF
- Terasa (voliteľná): nie
Poznámka
V cene nie je zahrnuté:
Základy pod dom , Žeriav na vykládku domu , Kuchynská linka , Napojenie na IS , Montáž , Revízia elektriny, Bleskozvod , Projekt
Doprava nie je zahrnutá v cene. Účtuje sa podľa miesta realizácie ,aby zákazník platil iba reálne náklady .
Orientačná cena : od 2 000 € s DPH pre 1 modul.
Technická špecifikácia
V cene nie je zahrnuté:
Základy pod dom , Žeriav na vykládku domu , Kuchynská linka , Napojenie na IS , Montáž , Revízia elektriny, Bleskozvod , Projekt
Doprava nie je zahrnutá v cene. Účtuje sa podľa miesta realizácie ,aby zákazník platil iba reálne náklady .
Orientačná cena : od 2 000 € s DPH pre 1 modul.
Výhody domu
Úsporná
prevádzka
Premyslené skladby stien a technológie šetria energie.
Montáž bez
prieťahov
Výroba v hale, na pozemku len rýchle osadenie.
Rastie
s vami
Modulárna koncepcia a ľahké rozšírenie dispozície.






























