68 800 € s DPH

Popis domu FLORENCIA

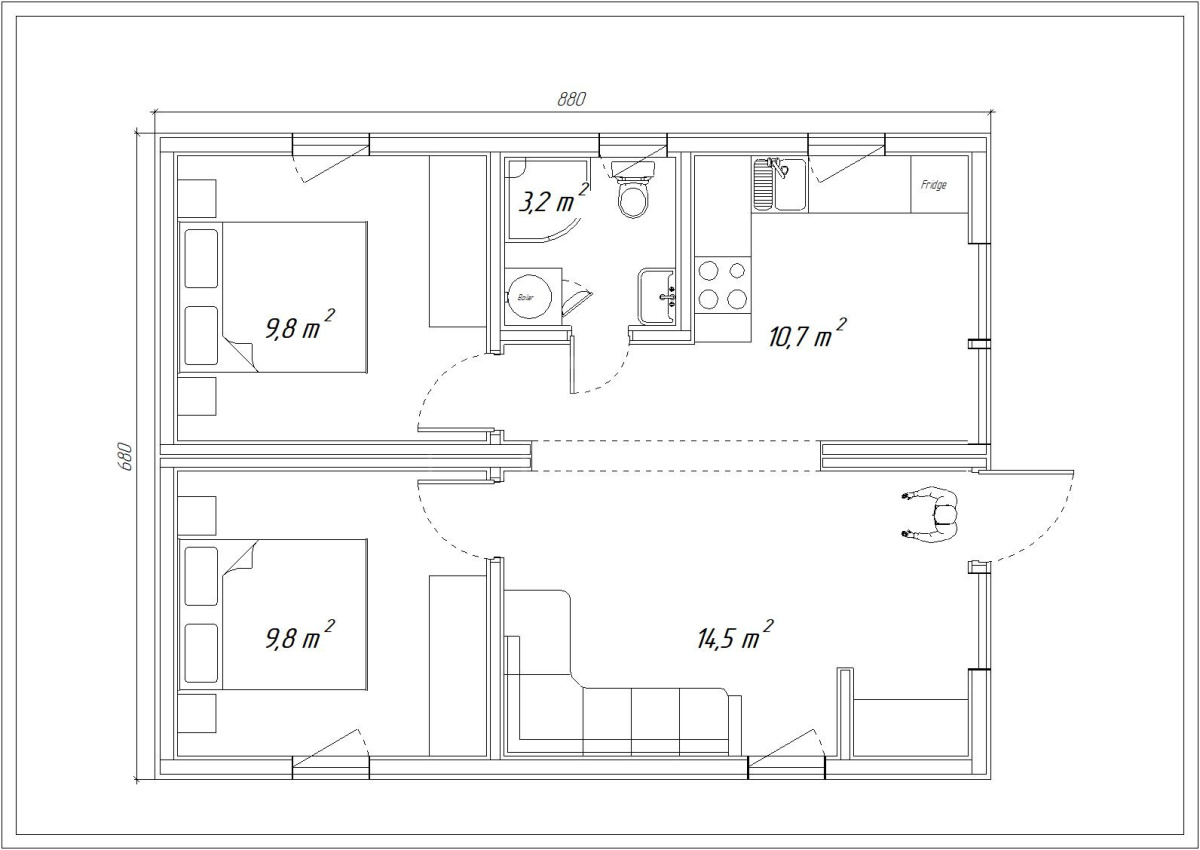
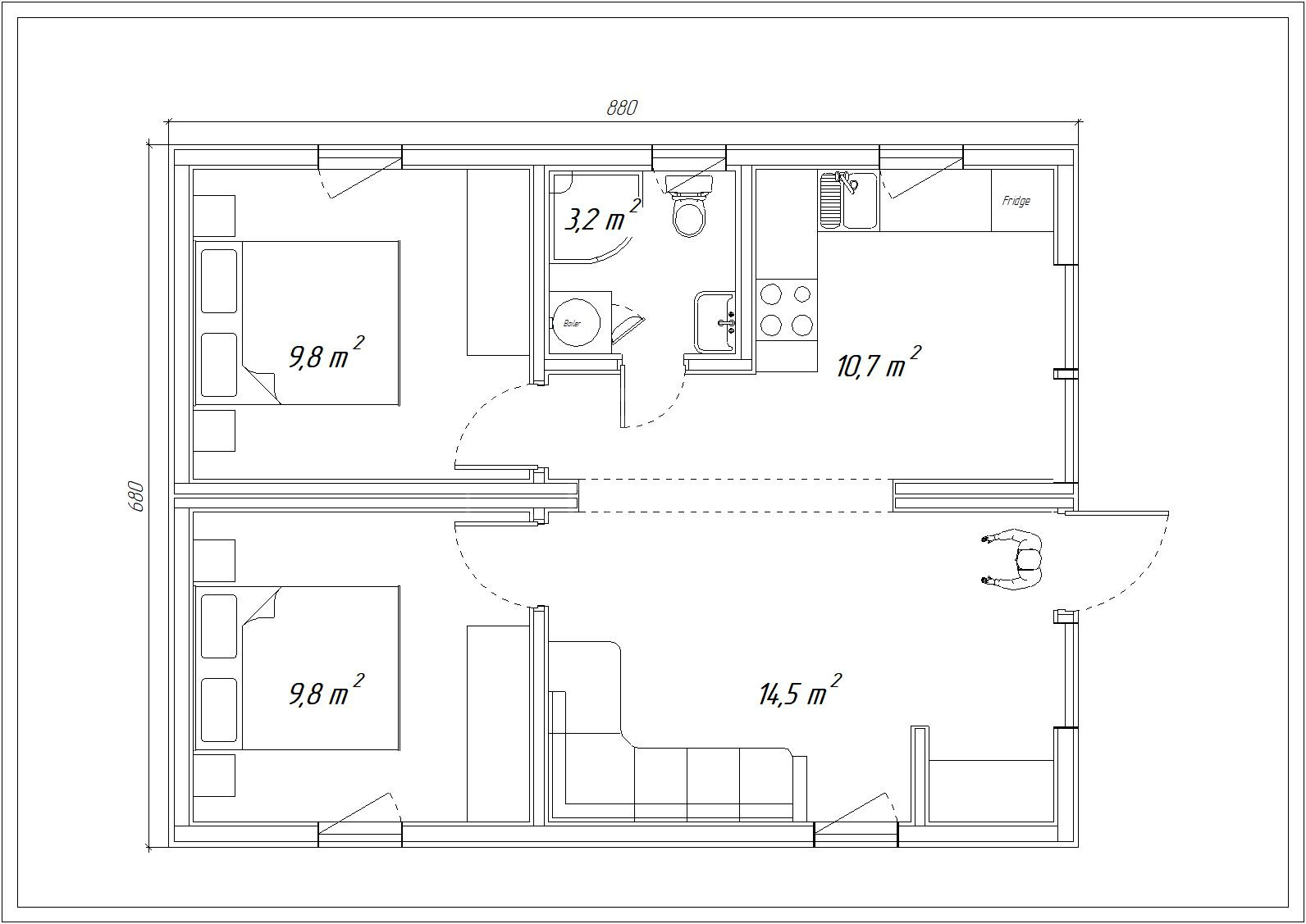
Florencia  je kompaktný modulárny dom vhodný na celoročné bývanie. Tento model  zahŕňa kuchyňu s obývacou izbou, kúpeľňu, dve samostatné spálne. Je vhodný aj ako štartovacie bývanie pre mladých .

Položka Popis
Inštalácia vody a kanalizácie inštalácia vodovodných inštalácií v stenách vrátane pripojení pre umývadlo, práčku a kuchynský drez
Ohrev vody 80 l bojler
Vaňa/sprcha sprchovací kút 90×90 cm
Toaleta stojaca toaleta
Elektroinštalácia medené rozvody, zásuvky, LED osvetlenie, vypínače, rozvodná skrinka s poistkami a prúdovými chráničmi
Kúrenie Elektrické podlahové infra
Klimatizácia zásuvka a výstuž v stene pre montáž klimatizácie (montáž je doplnková možnosť)
Kuchyňa pripojenie k drezu a varnej doske
Kuchynský nábytok doplnková možnosť (nie je zahrnutá v základnej cene)
Krb doplnková možnosť (nie je zahrnutá v základnej cene)
Terasa doplnková možnosť (nie je zahrnutá v základnej cene)
Strešná krytina vlnitý plech
Fasáda vonkajšej steny Škandinávsky smrek
Vnútorné steny panely z prírodného dreva
Podlahové krytiny v miestnostiach laminátová plávajúca podlaha
Podlahová krytina v kúpeľni keramická dlažba
Dokončenie stropu v kúpeľni prírodné drevené panely (8,5 cm)
Dokončovanie stien v kúpeľni prírodné drevené panely (8,5 cm) a dlažba v sprchovacom kúte
 
 

 

Dohodnúť obhliadku v showroome

Parametre

  • Úžitková plocha: 60 m2
  • Výška: 3,30
  • Šírka: 6,80
  • Dĺžka: 8,80
  • Svetlá výška interiéru: 2,25 – 2,7 m
  • Zateplenie: podlaha a strop - 200 mm stlačené na 150 mm (minerálna vlna) steny - 150 mm (čadičová vlna)
  • Kostra: suché kalibrované drevo chránené bioochranou
  • Okná: dvojkomorový kovovo-plastový, laminovaný, energeticky úsporné 3 sklá
  • Dvere: vchodové dvere - kovovo-plastové, interiérové ​​dvere - MDF
  • Terasa (voliteľná): nie

Poznámka

V cene nie je zahrnutá doprava, základy pod dom, žeriav na vykládku domu, kuchynská linka, projekt, revízia elektriny, montáž, pripojenie na IS , bleskozvod.

Dodatkové ceny: 

montáž -  3 500 €

 

Využite jedinečnú príležitosť získať financovanie so zvýhodneným úrokom už od 5,99 %.

Táto limitovaná ponuka platí len 3 mesiace - ideálny čas posunúť svoje plány do reality.

Tatra Banka

Pôdorys

Typové riešenia - domy / FLORENCIA - foto

Technická špecifikácia

V cene nie je zahrnutá doprava, základy pod dom, žeriav na vykládku domu, kuchynská linka, projekt, revízia elektriny, montáž, pripojenie na IS , bleskozvod.

Dodatkové ceny: 

montáž -  3 500 €

 

Galéria

 Typové riešenia - domy / FLORENCIA - foto2
 Typové riešenia - domy / FLORENCIA - foto2
 Typové riešenia - domy / FLORENCIA - foto2
 Typové riešenia - domy / FLORENCIA - foto2
 Typové riešenia - domy / FLORENCIA - foto2
 Typové riešenia - domy / FLORENCIA - foto2
 Typové riešenia - domy / FLORENCIA - foto2
 Typové riešenia - domy / FLORENCIA - foto2
 Typové riešenia - domy / FLORENCIA - foto2

Výhody domu

Úsporná
prevádzka

Premyslené skladby stien a technológie šetria energie.

Montáž bez
prieťahov

Výroba v hale, na pozemku len rýchle osadenie.

Rastie
s vami

Modulárna koncepcia a ľahké rozšírenie dispozície.

Podobné domy